歡迎親臨查詢:觀塘旗艦店銅鑼灣灣仔太子旺角分店澳門辦事處
 
  •  3 2x
  •  3 2x
  •  3 2x
  •  3 2x
  •  3 2x

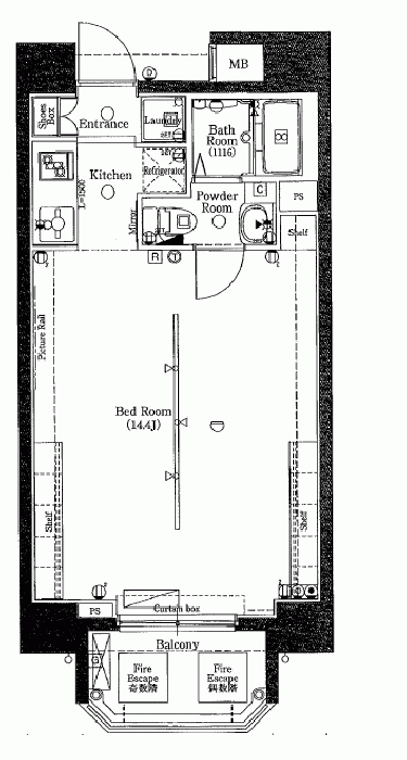
AXAS東京イーストレジデンス

2400万円

管理費:7100円、修繕費:1900円

交通:JR総武線/亀戸駅 徒歩3分
屋齡:17年
面積:壁芯 34.73m2

表面報回率:

6.13%

相關樓盤


  • 3570万円

    コーベルサンクレスト


  • 2680万円

    コスモ鎌ヶ谷<貸事務所・店舗>


  • 2980万円

    アヴァンティーク銀座2丁目


  • 3500万円

    トーシンフェニックス芝アストラーレ


  • 3200万円

    グランステューディオ市ヶ谷薬王寺1番館◇内覧可能◇


  • 2980万円

    ルーブル両国

物件基本情報

物件詳細情報

價格

投資回報率

物件狀態

建築年數