歡迎親臨查詢:觀塘旗艦店銅鑼灣灣仔太子旺角分店澳門辦事處
 
  •  3 2x
  •  3 2x
  •  3 2x

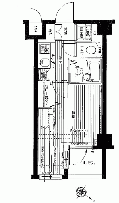
エルミタージュ代田橋

1770万円

管理費:6150円、修繕費:1300円

交通:京王線/代田橋駅 徒歩9分
屋齡:18年
面積:壁芯 20.34m2

表面報回率:

5.25%

相關樓盤

物件基本情報

物件詳細情報

價格

投資回報率

物件狀態

建築年數