1200万円
管理費:11340円、修繕費:10380円
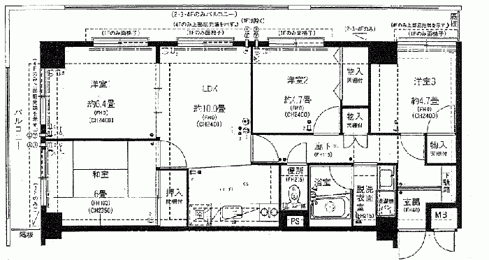
交通:JR越後線/青山駅 徒歩15分 屋齡:33年 面積:壁芯 72.8m2
表面報回率:
メインステージ早稲田 角部屋
オリオ東長崎
グローリア初穂久が原
エスコート芝浦EAST
ガラ・ステージ南大塚
菱和パレス大森
價格
狀態
參考數據
租金
管理費
修繕費
所在地
交通
格局
屋齡
出售樓層╱總樓層
面積
陽台面積
總戶數
方位
建築構造
土地權利
用途地域
管理型態
管理公司
土地面積
管理人
都市計畫
設備
鄰近設施
其他交通
建築公司
備註