歡迎親臨查詢:觀塘旗艦店銅鑼灣灣仔太子旺角分店澳門辦事處
 
  •  3 2x
  •  3 2x
  •  3 2x
  •  3 2x
  •  3 2x

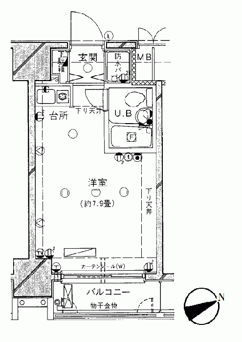
シーアイマンション池袋

1150万円

管理費:11300円、修繕費:5000円

交通:JR山手線/池袋駅 徒歩10分
屋齡:34年
面積:壁芯 18.31m2

表面報回率:

7.83%

相關樓盤

物件基本情報

物件詳細情報

價格

投資回報率

物件狀態

建築年數