1580万円
管理手数料:8780円、修理費用:6050円
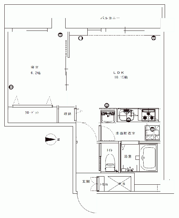
トラフィック:JR総武線/亀戸駅 徒歩3分 建設した年:51年 エリア:壁芯 40.99m2
表面はレートが戻って報告した:
オリオ東長崎
エスコート芝浦EAST
ガラ・ステージ南大塚
スカイコート大森第5
ビバリーホームズ豊島園
藤和下北沢ハイタウンB棟※店舗・事務所タイプ※
価格
ステータス
参考データ
賃料
管理手数料
修理費用
場所
トラフィック
パターン
建設した年
床╱フロアの総販売
エリア
バルコニー面積
の総数
ポジション
建築構造
土地の権利
制限区域
経営スタイル
管理会社
土地面積
管理者
都市計画
機器
近くの施設
他のトラフィック
建設会社
発言