630万円
管理費:7500円、修繕費:5000円
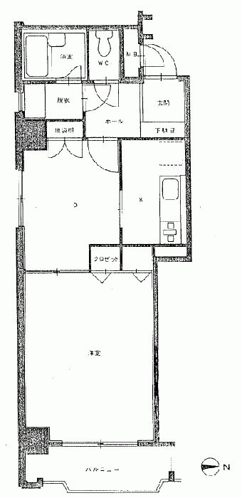
交通:名古屋市営東山線/栄駅 徒歩12分 屋齡:40年 面積:壁芯 43.65m2
表面報回率:
メゾン・ド・セレスト
ブランシェ十条
メインステージ早稲田 角部屋
オリオ東長崎
グローリア初穂久が原
エスコート芝浦EAST
價格
狀態
參考數據
租金
管理費
修繕費
所在地
交通
格局
屋齡
出售樓層╱總樓層
面積
陽台面積
總戶數
方位
建築構造
土地權利
用途地域
管理型態
管理公司
土地面積
管理人
都市計畫
設備
鄰近設施
其他交通
建築公司
備註