1900万円
管理費:14000円、修繕費:1390円
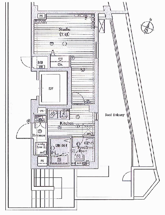
交通:京王線/代田橋駅 徒歩9分 屋齡:18年 面積:登記簿 25.35m2
表面報回率:
エスコート芝浦EAST
ビバリーホームズ豊島園
藤和下北沢ハイタウンB棟※店舗・事務所タイプ※
日興パレス永代
エルフラット鶯谷
コーベルサンクレスト
價格
狀態
參考數據
租金
管理費
修繕費
所在地
交通
格局
屋齡
出售樓層╱總樓層
面積
陽台面積
總戶數
方位
建築構造
土地權利
用途地域
管理型態
管理公司
土地面積
管理人
都市計畫
設備
鄰近設施
其他交通
建築公司
備註