歡迎親臨查詢:觀塘旗艦店銅鑼灣灣仔太子旺角分店澳門辦事處
 
  •  3 2x
  •  3 2x
  •  3 2x

トーカン柏キャステール

570万円

管理費:0円、修繕費:0円

交通:JR常磐線/柏駅 徒歩6分
屋齡:2026年
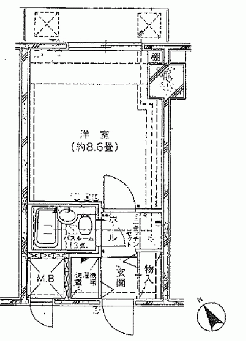
面積:- -m2

表面報回率:

11.79%

相關樓盤

物件基本情報

物件詳細情報

價格

投資回報率

物件狀態

建築年數